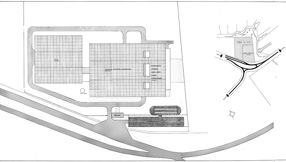
Bombril Nordeste
Distrito de Industrial de Paratibe – PE
No Nordeste – com o clima de temperaturas entre 25 e 37 graus, e uma brisa constante – a desassociação da coberta e das paredes cria uma grande sombra, protegendo do sol e da chuva, enquanto estas servem de vedação, garantindo a renovação de ar nos ambientes internos.
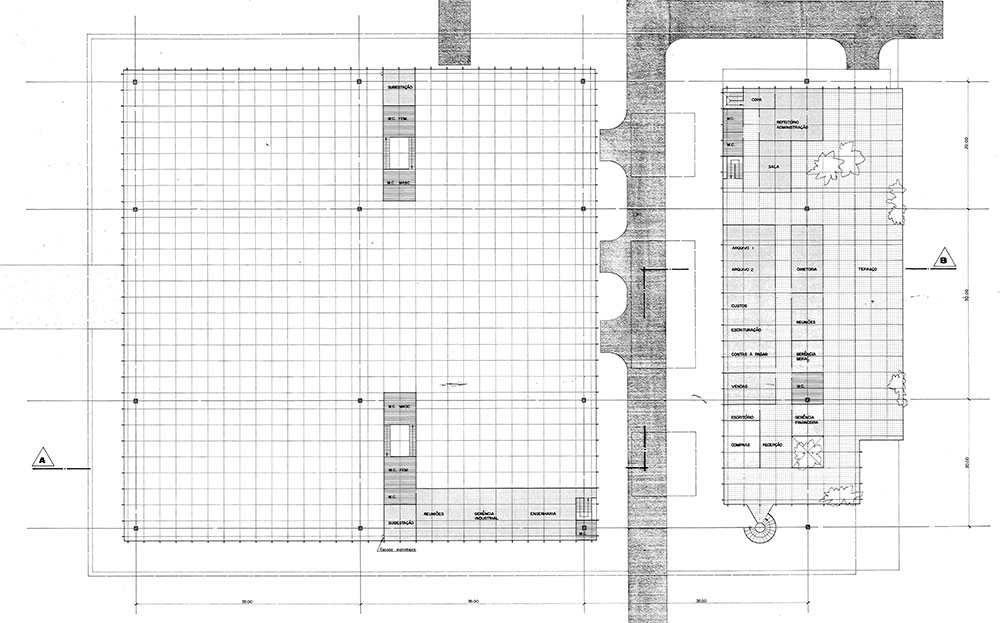
Toda a fábrica foi projetada dentro de uma malha modular tridimensional (M = 1,25m), com os elementos pré-moldados, tanto os pilares como as placas de concreto, as quais constituem os panos de vedação. A cobertura possui estrutura metálica espacial (M = 2,50m), sobre a qual são colocadas telhas trapezoidais de alumínio. O fechamento dos 03 blocos foram pré-moldadas, utilizando-se 06 matrizes em madeira, permitindo a reprodução em fiberglass quantas formas/moldes fossem necessárias para a unidade funcional/compositiva.

















