CASA DE PERNAMBUCO – PORTO –PORTUGAL
Criar uma imagem do Brasil e de Pernambuco é a proposta do Centro Cultural e Empresarial Casa de Pernambuco, situada no Campus da Universidade do Porto, em Portugal. Neste projeto, ainda em construção, Borsoi leva a expressão da arquitetura moderna e contemporânea do Brasil, que por três décadas vem se definindo tipologicamente por formas simples e puras, com uma peculiar expressão de leveza além de inserir no edifício um pouco do Nordeste tropical, sua vegetação e a sua cultura.
O programa abrange uma atividade cultural acadêmica de intercambio de informações entre as cidades do Porto e Recife, bem como, uma atuação empresarial com os mesmos objetivos.
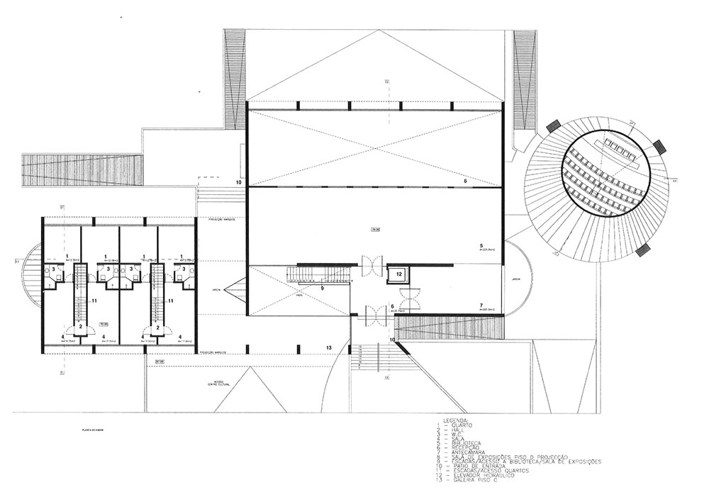
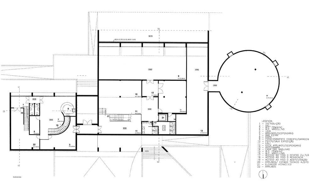
O espaço foi dividido em locais que atendam às necessidades do programa: auditório de 98 lugares para a realização de encontros, seminários, palestras, cursos e projeção de vídeos, bloco destinado à divulgação cultural, com biblioteca, espaço para arte popular, área de exposição temporárias, serviços de informações, recepção, cyber-café, e subsolo com o depósito e serviços; bloco destinado a intercambio e relações empresariais formado por board room (apoio aos empresários, secretarias e equipamentos de apoio), quatro flats (para alojamento de professores visitantes, pesquisadores, estagiários, etc. com permanência limitada na universidade) e subsolo para serviços.

















